
The area of modern Sudan south of the First Cataract at Elephantine was known to the Egyptians as Nubia, subdivided like Egypt in two, as Lower Nubia (Wawat), the area between the First and Second Cataracts of the Nile, and Upper Nubia (Kush), upstream of the Second Cataract. In addition to the indigenous towns and cities of the region, the most important example being Kerma, Nubia also received Egyptian settlement in the form of forts and towns built during Egypt’s imperial domination of the region during the Middle and New Kingdoms.
Fortified towns
Some of these Middle Kingdom forts were overwhelmingly military in character, especially those in naturally defended locations such as the rocky outcrops overlooking the Nile at Semna and Kumma, or islands such as Uronarti. Others, built in the floodplain to the north of the second cataract, were designed for a larger population, the largest and most important of which was Buhen, which was mainly excavated by the British archaeologist Harry Smith as part of the Nubian Rescue Campaign, which aimed to record and excavate as many archaeological sites as possible in this part of Lower Nubia in the 1960s and 1970s before the building of the Aswan High Dam and the subsequent creation of Lake Nasser.

The intimidating multi-layered defences of Buhen were essential when the fortress-town faced a potentially substantial threat from Egypt’s Nubian enemies during the Middle Kingdom. Paul Almasy/Corbis.
The defences of the central ‘citadel’ at Buhen, which was 150 by 138 m (492 by 453 ft), are some of the most extensive and complex of any piece of military architecture anywhere in Egypt’s empire, with a series of walls and ditches obviously designed against a serious potential military threat. Within these walls, the layout of the administrative centre was based on Middle Kingdom ideas of orthogonal design for centrally planned settlements (as at, for instance, Kahun and Wah-Sut at Abydos), with clearly designated blocks for a temple, a barracks or storage building, and a military command centre built in the northwest corner of the citadel. Outside this fortified core, outer defences contained an area of 420 by 150 m (1,378 by 492 ft), which was not investigated before being flooded by Lake Nasser.
New Kingdom Cities in Nubia
During the New Kingdom, the main seats of imperial power in Nubia were Aniba and Faras (capitals of Wawat, Lower Nubia), Amara and Soleb (capitals of Kush, Upper Nubia). Heavy defensive fortifications were no longer a priority, since any serious Nubian opposition to Egyptian control of the region had effectively been crushed early in the 18th Dynasty. Instead, the emphasis was on the creation of suitable Egyptian ‘colonial’ towns to serve a primarily imported Egyptian population. The basic model seems to have been the ‘temple-town’, although it should be noted that the largest and best known of the Nubian temples – those built by Ramesses II at Abu Simbel, Gerf Hussein and Wadi es-Sebua – have not produced adjoining settlement remains of any size. The same is true of the important temple built by Amenhotep III for his wife Tiye at Sedeinga.
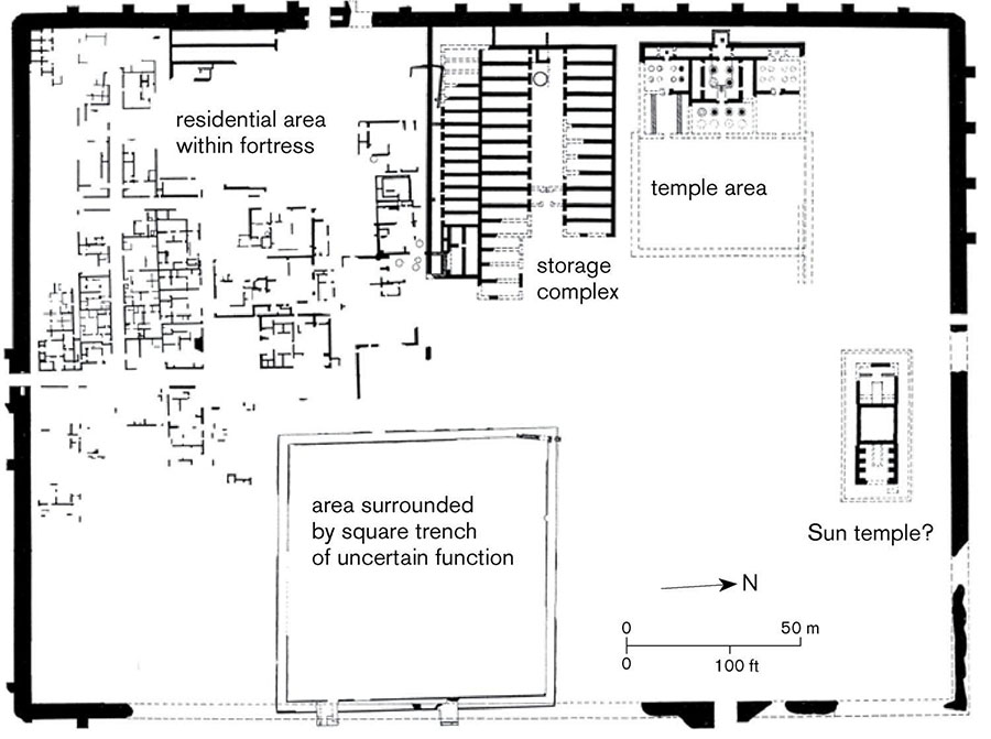
A good example of a New Kingdom temple-town in Nubia is Amara West, excavated by Herbert Fairman and Peter Shinnie from 1938 to 1950, and since 2008 by Neal Spencer. The core town, which was founded by Seti I and continued in use until the reign of Ramesses IX, consisted of a sandstone temple around which a number of tightly packed mudbrick buildings were clustered. The density of this settlement may reflect the possibility that, in the Ramesside Period, this was an island in the Nile. To the west of the town itself was a suburb consisting of large villas. Sesebi is 80 km (50 miles) south of Amara West and was also excavated by Fairman and Aylward Blackman in 1936–38, and since 2008 by Kate Spence for the University of Cambridge. The town was laid out on a regular, grid-iron plan within an enclosure wall, 270 m north to south and 200 m east to west (886 by 656 ft), and divided into a series of areas that can be recognized as residential housing, administrative buildings and a series of temples. Sesebi seems to have been founded by Akhenaten and continued in use until the Ramesside Period.
Although the settlement and administrative buildings of the Egyptian colonial town at Faras (ancient Ibshek) have not been identified, the distribution over a wide area of the tombs and temples associated with the New Kingdom town suggests that the Sesebi model – that of a compact, walled settlement – does not apply everywhere and that some Egyptian colonists felt secure enough to develop a more dispersed form of urban occupation, which they would have known well from, for instance, Thebes.
One of the most striking archaeological sites of Lower Nubia is Qasr Ibrim, not least because, located well above the Nile itself, it is the only site in the area to have survived the creation of Lake Nasser. The early history of Qasr Ibrim is unclear, especially the question of whether or not it was occupied during the New Kingdom. However, it seems to have become an important regional centre from the end of the New Kingdom with a long constructional history from the 25th Dynasty until the Middle Ages.

The town of Sesebi is a good example of the extent to which Egyptian towns in Nubia during the later part of the 18th Dynasty and Ramesside Period were built with an emphasis on well-planned settlements and monumental architecture, like in Egypt itself, reflecting Nubia’s status as a pacified part of Egypt’s empire rather than a dangerous frontier. Egypt Exploration Society.

Sesebi plan. Steven Snape.